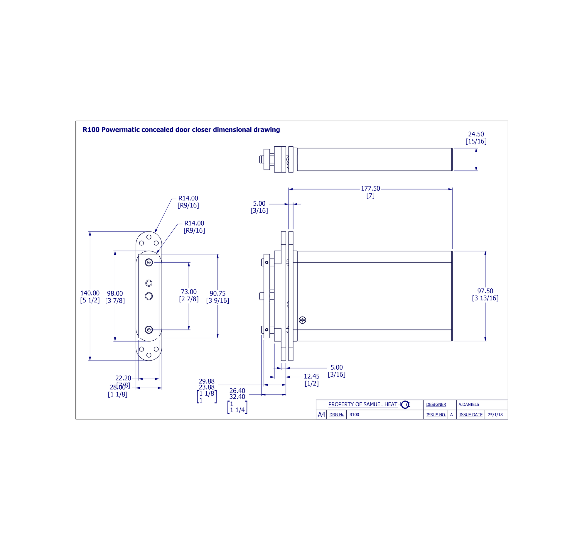
Description
The requirements of anti-ligature installations and those of door closers invariably contradict each other. The necessity of a linkage between the door and the frame always creates a ligature point when the door is open.
One of the best compromises is the Perko Powermatic concealed door closer. Operating at power size 3, with adjustable closing and latching speeds, this unit has a concealed jam mounted configuration making it a less obvious ligature risk. While a ligature risk will always be present with this model of door closer, it can be minimised by installing it at as little as 300mm above floor level.















